Additional information
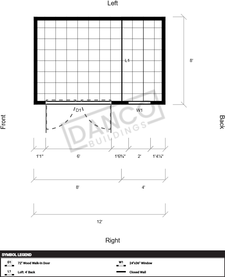
| Style | Side Lofted Barn |
|---|---|
| Size | 8×12 |
| Wall Height | 76 1/2" |
| Roof Pitch | Standard |
| Siding Color | |
| Siding Material | Arauco |
| Trim Color | Repose Gray |
| Roof Color | Pewter |
| Roof Material | Metal |
| Porch | None |
| Windows | 24"x36" Window |
| Doors | 72" Wood Walk-In Door |






Reviews
There are no reviews yet.